| 一、使用条件 |
|
本产品适用于冶金、重型、矿山等机械设备单配稀油循环润滑系统中,其工作介质粘度等级为N22-N460(相当于ISO VG22-460)的工业润滑油,冷却装置采用列管式油冷却器。
稀油润滑装置的公称供油压力为0.63MPa;过滤精度低粘度时为0.08mm;高粘度时为0.12mm;冷却水温度≤30℃;冷却水压力<0.4MPa;冷却器的进油温度为50℃时,润滑油的温降≥8℃,蒸汽压力为0.2-0.4MPa;泵口压力应大于0.63MPa。
XHZ-6.3~XHZ-125的小型稀油润滑装置为整体出厂;XHZ-160~XHZ-500的中型稀油润滑装置为分部件包装出厂;XHZ-630~2000及XHZ-630A~2000A(带压力罐加“A”)的大型稀油润滑装置为散件成套供货,现场焊接组装。
|
|
| |
| 二、工作原理 |
本稀油润滑装置的工作原理如下:
油液由油泵排出经单向阀、截止阀、双筒网式过滤器及油冷却器后被直接送往润滑点,然后沿着系统的回油总管经回油过滤流回油箱。泵的公称压力为0.63MPa(即泵的最大出口压力),稀油润滑装置的供油压力为0.5MPa(即出油口压力)。设有压力罐的稀油润滑装置,其气源压力为0.5~0.6MPa。
正常操作时,一台齿轮泵工作,一台备用,通过转换开关来控制使之交替使用,通过按钮开关启动和停止。泵的输出端配有安全阀,用以避免油泵过截,此阀设定的开启压力为0.63MPa。系统的压力由压力开关控制,当系统压力达到正常调定值时,主机方可启动,当系统压力低于某一调定值时,备用泵自动启动,直到压力恢复正常为止。如系统压力继续降低,低于最低调定值时,发出低压事故报警信号,责令主机停车排除故障。 |
| |
| 三、结构特点 |
1、在双筒过滤器上装有差压讯号器,当过滤器进出口压差超过0.10~0.15MPa 时,差压讯号器发出报警信号,用来通知切换工作滤网筒,以便清洗或更换滤网(此装置设计在冷却器装置之前;油粘度较高者更适合)。
2、在冷却器的进水口装有一个直读式温度计和电磁水阀,用来观察进水温度和控制冷却水的通或断。在系统的出油口处,装有一个电接点、温度计和温度控制器,用于控制工作油温;当出口油温高于某一调定的温度时,电磁水阀自动开启,冷却器投入工作,直到油温恢复正常为止。如冷却器已投入工作,系统的油温继续上升,达到最高温度时,温度控制器发出油温过热报警信号。当冷却器需要更换或维修时,可关闭冷却器的进出口阀门,打开旁路阀门,油液即不经冷却器直接送往润滑点。
3、在油箱上装有二个电接点温度计和二个液位开关,当油箱油温低于某一调定温度时,电加热器通电或蒸汽阀门开启,对油液进行加热,直到达到正常操作油温为止。当油箱中油液的温度低于最低调定温度时,油泵不能启动,需对油箱中油液加热。当油箱的液位达到上限或下限时,液位开关发出报警信号。
4、型号后带“A”者为有压力罐的装置,可满足发生意外事故或突然停电时,储存在压力罐中的油液可作临时压力油源向系统短时供油,但需注意压力罐上的一般单向阀应水平安装,不得向下安装(对较小的旋启式单向阀允许向上安装),附图中应作相应改变。
5、配有电控柜和仪表盘,观察运行参数方便,可实现自动控制和事故报警。 |
| |
| 四、技术参数 |
| 型 号 |
公称
流量L/min
|
油箱
容积
m3 |
电动机 |
过滤
面积
m2 |
换热
面积
m2 |
冷却水
管通径
mm |
冷却水
耗量
m3/h |
电加热
器功率
kW |
蒸汽管
通径
mm |
蒸汽
耗量
kg/h |
压力罐
容量
m3 |
出油口
通径
mm |
回油口
通径
mm |
重量
(约)
kg |
极数
p |
功率
kW |
| XHZ-6.3 |
6.3 |
0.25 |
6 |
0.75 |
0.05 |
1.3 |
25 |
0.6 |
3 |
— |
— |
— |
15 |
40 |
320 |
| XHZ-10 |
10 |
| XHZ-16 |
16 |
0.5 |
6 |
1.1 |
0.13 |
3 |
25 |
1.5 |
6 |
— |
— |
— |
25 |
50 |
980 |
| XHZ-25 |
25 |
| XHZ-40 |
40 |
1.25 |
6 |
2.2 |
0.20 |
6 |
32 |
3.8 |
12 |
— |
— |
— |
32 |
65 |
1520 |
|
XHZ-63
|
63 |
| XHZ-100 |
100 |
2.5 |
6 |
5.5 |
0.40 |
11 |
32 |
7.5 |
18 |
— |
— |
— |
40 |
80 |
2850 |
| XHZ-125 |
125 |
| XHZ-160 |
160 |
5 |
4, 6 |
7.5 |
0.52 |
20 |
65 |
20 |
— |
25 |
40 |
— |
65 |
125 |
3950 |
| XHZ-200 |
200 |
| XHZ-225 |
225 |
10 |
4, 6 |
11 |
0.83 |
35 |
100 |
30 |
— |
25 |
65 |
— |
80 |
150 |
5660 |
| XHZ-315 |
315 |
| XHZ-400 |
400 |
16 |
4, 6 |
15 |
1.31 |
50 |
100 |
45 |
— |
32 |
90 |
— |
100 |
200 |
7290 |
| XHZ-500 |
500 |
| XHZ-630 |
630 |
20 |
6 |
18.5 |
1.31 |
60 |
100 |
55 |
— |
32 |
120 |
2 |
100 |
250 |
8169 |
| XHZ-630A |
10160 |
| XHZ-800 |
800 |
25 |
6 |
22 |
2.2 |
80 |
125 |
70 |
— |
40 |
140 |
2.5 |
125 |
250 |
11550 |
| XHZ-800A |
13780 |
| XHZ-1000 |
1000 |
31.5 |
6 |
30 |
2.2 |
100 |
125 |
90 |
— |
50 |
180 |
3.15 |
125 |
300 |
13315 |
| XHZ-100A |
15500 |
| XHZ-1250 |
1250 |
40 |
6 |
37 |
3.3 |
120 |
150 |
110 |
— |
50 |
200 |
4 |
150 |
300 |
15350 |
| XHZ-1250A |
17960 |
| XHZ-1600 |
1600 |
50 |
6 |
45 |
3.3 |
160 |
150 |
145 |
— |
65 |
260 |
5 |
150 |
350 |
20010 |
| XHZ-1600A |
23020 |
| XHZ-2000 |
2000 |
63 |
8 |
55 |
6 |
200 |
200 |
180 |
— |
65 |
310 |
6.3 |
200 |
400 |
25875 |
| XHZ-2000A |
30300 |
|
注:1、A 为带压力罐的稀油润滑装置,呈正方形布置。
2、斜齿轮油泵为4 极电机;人字齿轮油泵为6 极电机;极数也根据介质粘度确定,粘度高时宜选低速。
3、如冷却水质采用江河水,需经过滤沉淀,水温不应超过32℃。 |
| |
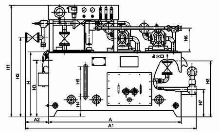
| 五、结构尺寸 |
|
|
|
|
| |